YOUR WAY
Discover an exclusive street
for car enthusiasts where
luxury meets passion.


Our Lakeway Luxury Garages & Living Spaces aren't just for parking cars. This unique community includes lots zoned for both commercial and/or residential use. So, set up shop or stay for the weekend.
You decide.
With up to 3,600 sq ft of space to design, the possibilities are endless. If you're ready to create the perfect space for your lifestyle, here’s how you can get started.
Reserve your building. By pre-ordering, you'll reserve one of the limited units, and you'll be able to customize build-out features.
Decide how to use it. Will the space just be for cars, a personal office or a weekend getaway with friends?
Choose your build-out plan. You can choose from 3 attractive designs and then move in when ready. Avoid the countless headaches and delays of city permits and subcontractors inherent with other options.

Relax in style, whether hosting dinners or enjoying a tranquil evening away.
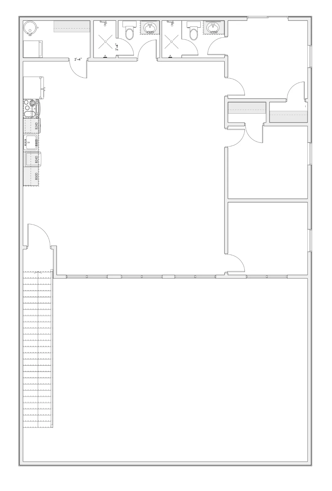
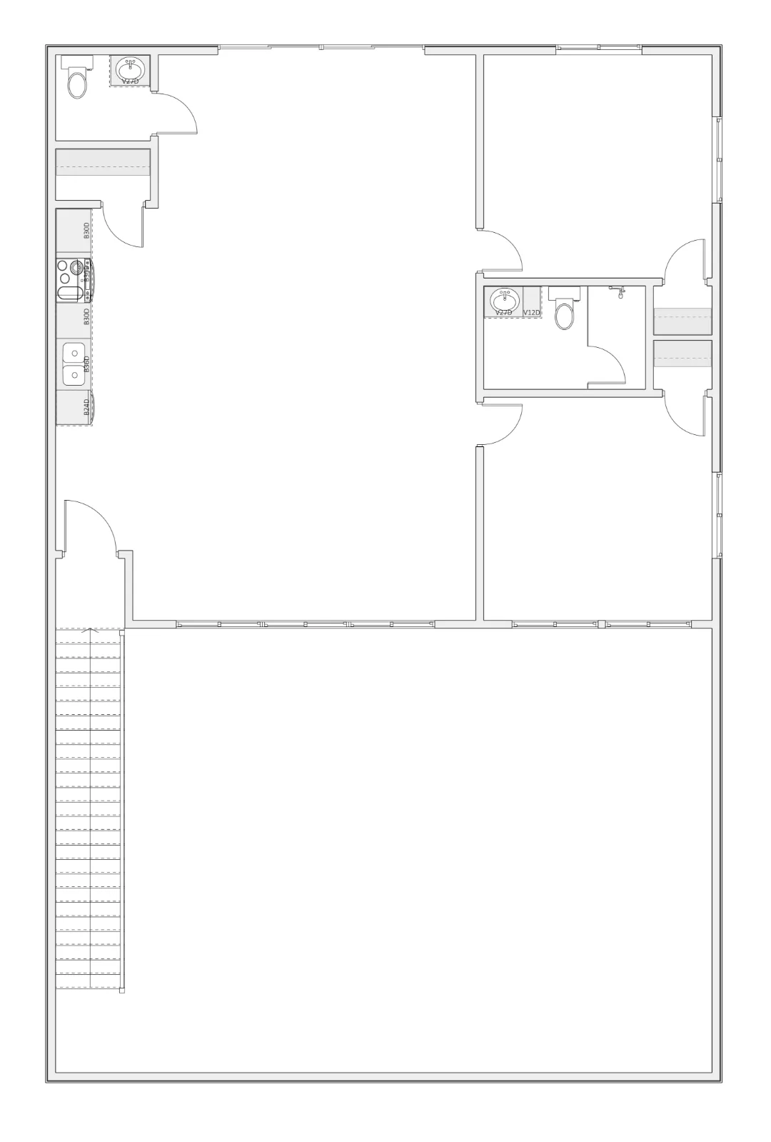
The Live Design offers an expansive 3-bedroom, 1.5-bathroom space designed for ultimate comfort and style. Enjoy a generous living area and a fully-equipped kitchen.
Every detail is designed to provide a serene escape from the hustle and bustle while your prized car collection rests securely below.



Ignite your ambition in our Work Design, bringing you a seamless blend of work and lifestyle.
This sophisticated 2-bedroom, 1.5-bathroom retreat offers an expansive work/living area and a sleek kitchenette, perfect for a high-end home office or creative studio.
Enjoy the luxury of having your prized vehicles just steps away, ensuring a workspace that truly inspires.



Relax in style, whether hosting dinners or enjoying a tranquil evening away.
The Live Design offers an expansive 3-bedroom, 1.5-bathroom space designed for ultimate comfort and style. Enjoy a generous living area and a fully-equipped kitchen.
Every detail is designed to provide a serene escape from the hustle and bustle while your prized car collection rests securely below.



style in a box
You've spent time and money crafting a collection that reflects your personal style.
Your storage space should do the same.
Our unique luxury garage and living buildings put you in the driver's seat.


1 Bed. 1 Bath. 2560 SQFT/

1 Bed. 2 Bath. 3160 SQFT

0 Bed. 1 Bath. 2470 SQFT/

1 Bed. 1.5 Bath. 2610 SQFT/